SparkBIM

PDF to BIM Conversion for Modern Residential Project

Project Details

Project Description

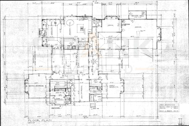
Spark BIM delivered a precise PDF to BIM conversion for a modern residential project using Autodesk Revit, creating an LOD 300 model with accurate detailing, spatial coordination, and construction-ready geometry for efficient design planning.

Projects Inputs

PDF (Floor Plan, Elevations)

Software Used

Revit

Project Output

RVT, OBJ, IFC

Total Area

4000 SQ.FT.

Client Location

South California, USA

About Project

Spark BIM successfully executed a PDF to BIM conversion for a modern residential project using Autodesk Revit. The BIM model was developed to LOD 300, ensuring accurate geometry, detailed architecture, and precise spatial coordination. This approach improves design accuracy, visualization, and project efficiency throughout the planning and execution stages.

Key Benefits of the PDF to BIM Conversion

  1. Detailed Visualization: The BIM model provided a realistic 3D view, helping clients and contractors clearly understand the design intent and spatial layout.

  2. Improved Accuracy: By transforming hand-marked PDF drawings into precise, data-rich BIM models, potential dimensional errors were significantly reduced.

  3. Enhanced Collaboration: The centralized BIM model served as a single source of truth, fostering seamless communication between clients, architects, and contractors.

  4. Streamlined Revisions: Design changes were effortlessly integrated into the BIM environment, ensuring quicker approvals, faster decisions, and improved project timelines.

Project Challanges

Request A Quote

    SparkBIM Projects

    Our Recent Projects

    Discover the power of BIM Construction Management through our latest case studies.